Florence Street Studio
Brunswick, Victoria
Australia
2018

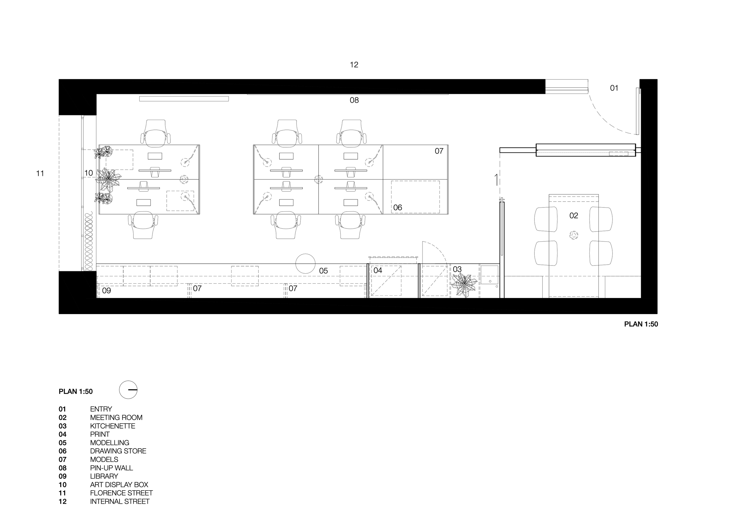
Located within the ground floor of one of Melbourne`s most socially & environmentally sustainable multi-residential buildings - Nightingale 1 in Brunswick, Victoria, this Florence Street Studio is a new space for a growing Architecture studio in a compact 45m2 shell.

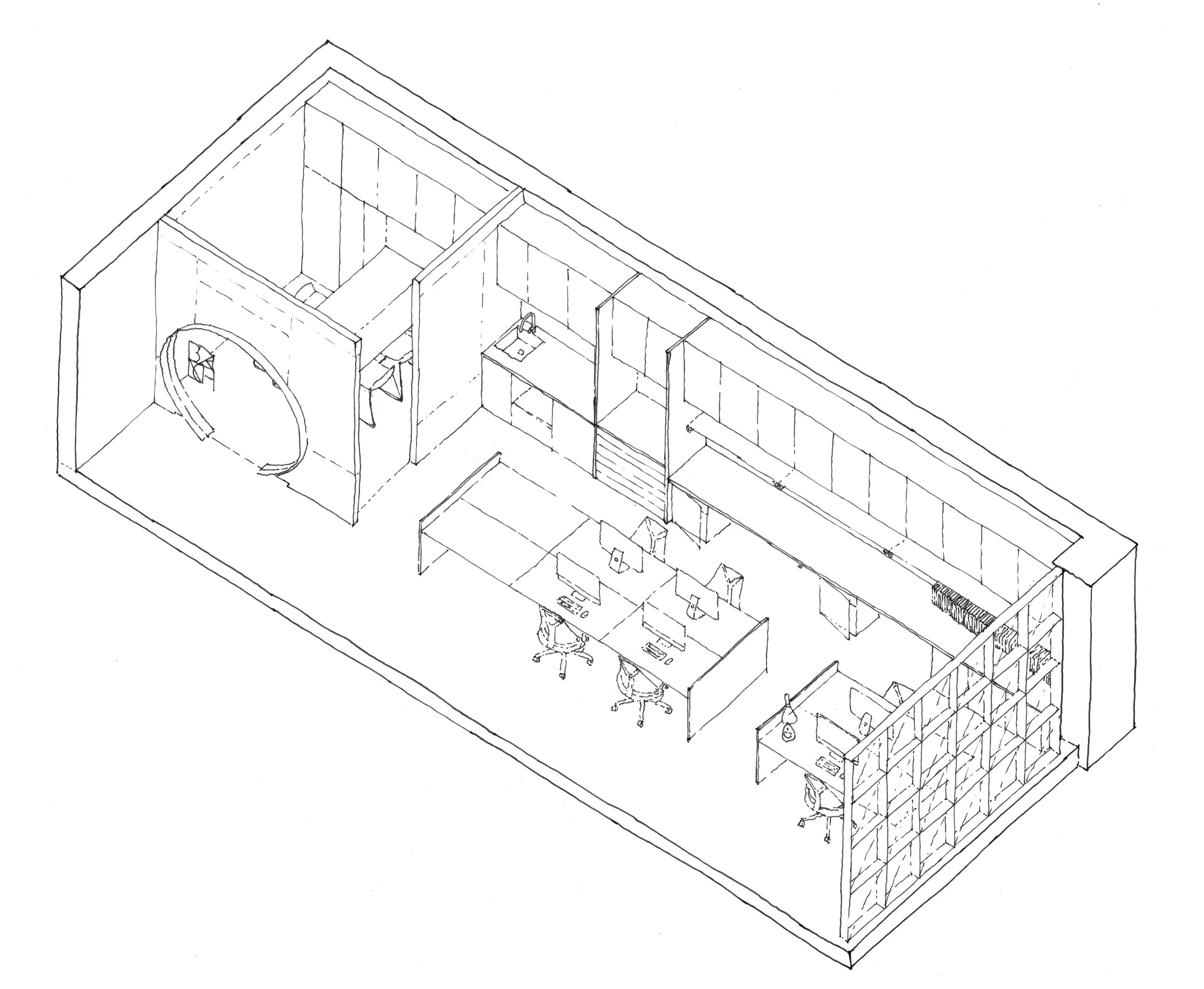
The space caters for two directors, an associate and two full time staff. However, the studio is capable of expanding to practically cater for 8-10 staff if necessary.

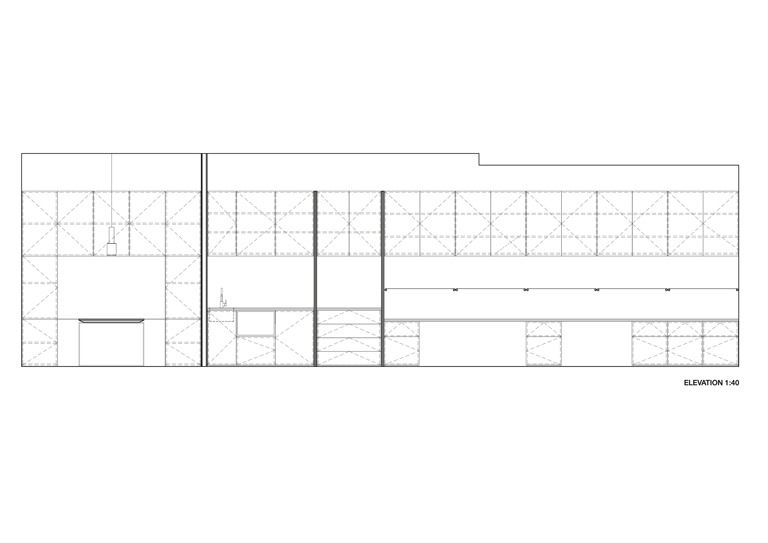
The meeting room or ‘Chapel of ideas’ externally clad in textured, natural steel sheet and internally treated in black stained plywood, is an intervention inserted into the space to create discussion into architectural history through the use of reference. Specifically derived from the chapel within Carlo Scarpa`s Brion Tomb of 1969-1977 in San Vito d`Altivole near Treviso, Italy. The meeting room is a window into the rich history of architecture, which we regularly find ourselves immersing in and as a result our ideas through discussions with our clients & collaborators.

  • Programmatically the studio also contains a meeting room, kitchenette, modelling area, pin-up spaces and ample storage space for physical models and books.

    Organisation of space is fairly non-hierarchical with entry, meeting room and kitchenette at the northern end or the space and the staff workstations closest to the southern [natural light] end of the space. East and West boundaries of the space host primary storage, models and pin-up space so the studio is encompassed in the previous experiments and work-in-progress to reflect on daily.

    Raw finishes such as concrete and steel contrast with the warmth of natural Australian timbers, soft wall finishes & finely tuned detailing. Desks and joinery are clad in a combination of utilitarian form-ply and naturally textured, feature grade blackbutt veneer. Raw black steel is celebrated throughout and refined pragmatically to create splash backs, removable shelving for books & models and also can be removed to accommodate additional work stations should there be a growth in staff numbers in the future.

    Light is carefully subdued and controlled to create an atmospheric sensibility & hierarchical narrative to the space yet still is enough for the day-to-day pragmatic operations of the studio.

    Similarly a textural and tonal material narrative creates a rich series of contrasts throughout.

Data and Credits

Scope: Architecture, Interiors
Typology: Interior commercial fitout
Cost: $50,000 AUD
GFA: 45 sqm
Services: Full Architectural Services
Completed: 2018
[Designed and completed whilst director & design director of
Branch Studio Architects]
Steelwork: SP McLean Engineering
Photography: Peter Clarke

Drawings

Previous
Previous

Sacred Heart Primary School - Arco

Next
Next

St Monica's College - Quaine Library