Marcellin College Library
Bulleen, Victoria
Australia
2025

The Marcellin College Library, located at Bulleen 13km north-east of Melbourne is the second stage of renovations to an existing building which under previous school management was due to be demolished.

The project follows on from the Placidus Student Welfare Spaces project completed by Branch in 2023, located directly below the library. Now safe from demolition - The overhaul of the building redefines it as a central heart of the campus both from a locality and programatic perspective - with knowledge and student wellbeing as key central themes to the college.

The new student-focused library, re-evaluates the traditional school Library in respecting traditions, but elaborates on these in the form of a series of both introverted and extroverted spaces that cater for the varying needs and types of students personalities within the library space. We knew before we started the project - As all students are different - we needed to create spaces for all students - not just some.

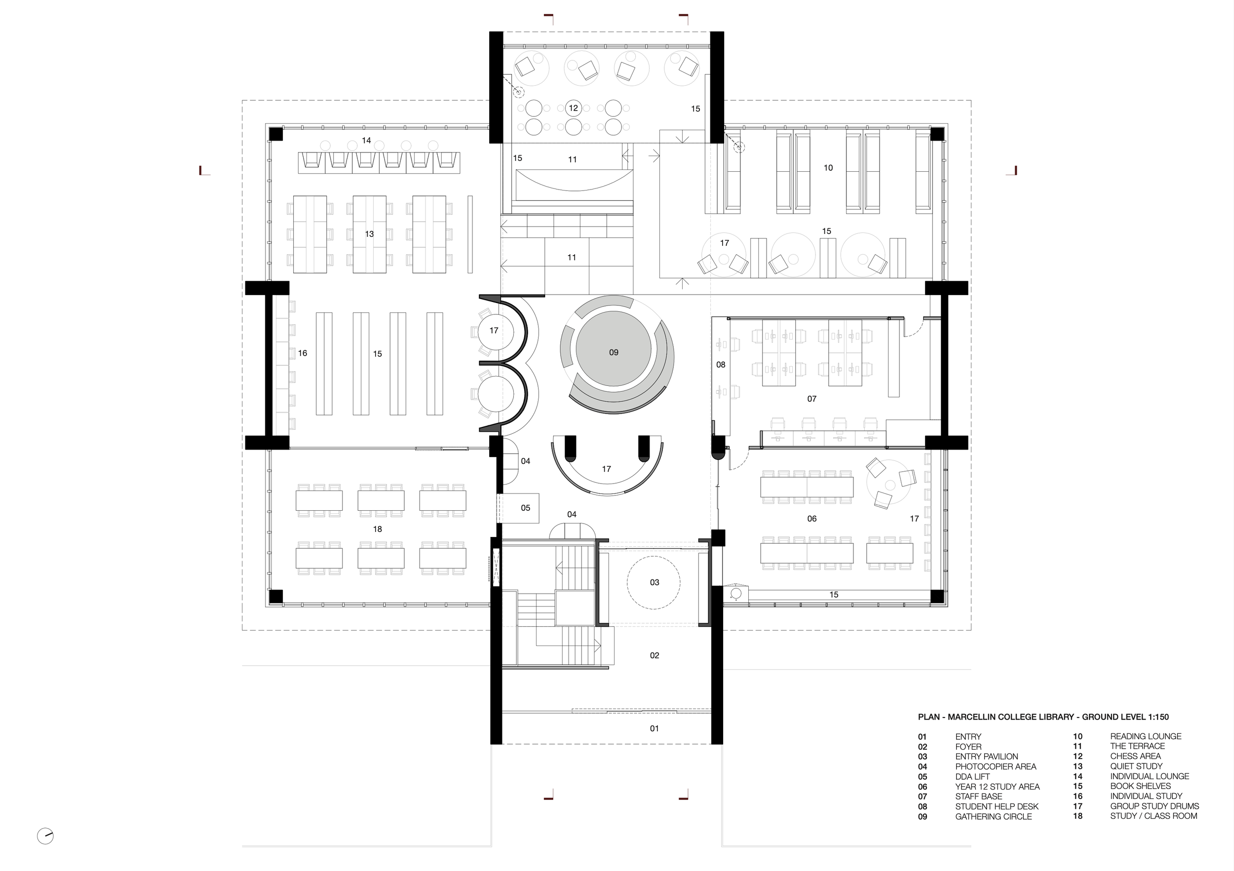
  • The overall space within the library is configured in a gradient manner across the plan from left to right in terms of noise levels, group sizes and traditional vs non-traditional types of library learning spaces.

    This configuration in conjunction with an existing 1100mm stepped level change in the floor plate allowed us to create a series of activated terraces to create a gradual transition between the upper and lower levels of the library. The elevation of the footprint through steps and terraces also importantly improves visual relationships to the surrounding green context - which previously fell short by 500mm in the now Study Lounge space.

    A central gathering circle creates a heart for the space - where a class size and or large groups can gather both in school hours and after-hours such as when guest authors and the like visit the school.

    A series of bespoke joinery components activate relevant areas of the internal space. These areas include - study lounge, book shelving, chess and games area, amphitheatre terrace, quiet reading desks and booths and individual study lounges, all of which allow constant views out across the school ovals and beyond. These joinery components were conceptualised as interventions within a landscape.

    The space is predominately wrapped in a timber veneer - in full sheets where possible to eliminate waste. This creates visual warmth and overall continuity.

    One of the primary goals of the library was to bring the library staff out of closed-off and introverted offices and create an environment where staff could be more visually an physically accessible to students. Our response was to create a open central staff base, back-lit and clad in translucent polycarbonate - creating a conceptual and physical - ‘glowing beacon’ in the middle of the library which puts the staff central to the library and facilitates improved interactions between staff & students.

    The existing entry foyer to the building was gutted, opened up and a new Entry Pavilion insertion provides a moment of sectional compression and reflection [on new books] before opening up into the primary double-height - central heart of the Library. The new entry sequence is clad in glass-face concrete render which creates a sense of cohesion and hierarchy to the two semi-circular apertures in the internal entry facade.

    The use of concrete and timber creates a visually robust perimeter with a warm interior.

    The ceiling throughout is used as an extension of the library ‘landscape’ below.

    Lower ceilings create more intimate spaces whilst elevated and enlarged ceiling heights are used to create and highlight moments of more public spaces such as the large circular ceiling extrusion over the central gathering circle.

    A once foundational component of any school campus - the school library has seen the growing implementation of digital technologies slowly remove the physicality of media, such as books replaced with screens. The foundation of the Marcellin College Library seeks to provide a balance of the two - where both are celebrated equally.

    The result of the project has deeply improved the culture of place, where students can now access staff more readily and confidently. Physical barriers are removed, stronger adjacencies of programs are curated and books and screens co-exist.

Data and Credits

Scope: Architecture & Interiors
Typology: Educational - Interior Fitout
Alterations & Additions to existing building
Cost: $2mil AUD
GFA: 710 sqm
Services: Full Architectural Services
Completed: 2025
[Designed and completed whilst director & design director of
Branch Studio Architects]
Structural Engineer: Ipsum Structures
Building Surveyor: Michel Group
Builder: MDC Building Group
Photography: Peter Clarke

Drawings

Previous
Previous

Caroline Chisholm College - Piazza Del'Ufficio

Next
Next

Caroline Chisholm College - Multi-Purpose Hall