Multi-Purpose Hall
Caroline Chisholm College Braybrook, Victoria
Australia
2022

A Celebration of Structuralist Traditions

The proposed new Multi-Purpose Hall was a much needed addition to the Caroline Chisholm College landscape. Previously, there was no space within the college ground where students and staff can come together for assemblies, celebrations, masses or sporting activities. 

The new proposal has been derived from a series of key architectural responses that relate directly to site, context and culture of place. 

The architectural response to the brief was responsive to the industrial nature of the local Braybrook environment. This provoked an exploration and celebration of some of the rich traditions of the expressive ‘Structuralist’ architectural movement in Melbourne which was prominent in the 1950`s onward. A building of note from this period is the Melbourne Olympic Swimming Pool by Kevin Borland, Peter McIntyre + John and Phyllis Murphy completed around 1952-54

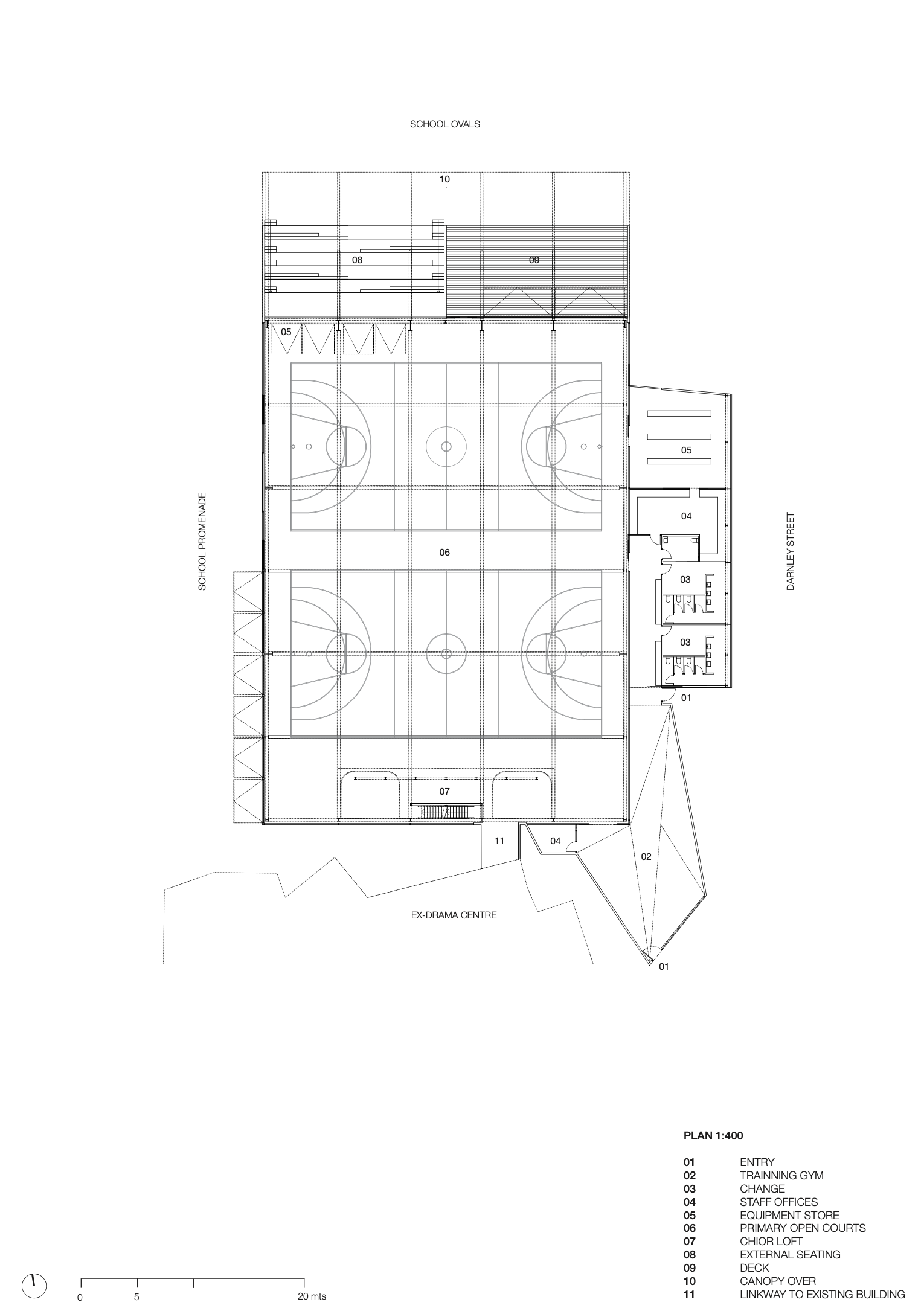
  • The flexible, floor plate has been designed to accommodate around 2100 seated students during assemblies and the like. A series of operable glass fire-station doors allow the building to open-up to the surrounding ovals, quadrangle and school playgrounds in order to facilitate an even larger quantity of occupants under a variety of circumstances. The building can act like one large expanding and contracting ‘canopy’ depending on the required use and audience.

    Along the northern elevation the building opens up to the oval and creates a continuity of landscape and built form through a series of glass operable doors in conjunction with the implementation of a terracing, grassed viewing area which steps to creating seating, 

    potential informal study, storage and activity areas. This external area is partly covered by an impressive large cantilevered awning that provides shade and weather protection during lunchtimes and recess. In conjunction to this large awning, a series of north-facing, pop-up [saw-tooth like] high-level windows, permit light into all areas of the main stadium space throughout the day. 

    The external facades are to be clad in three primary materials:
    The lower section of the facades are predominately operable glass, to allow flexibility and permeability to the internal / external spaces. 
    The middle level of the facade is to be clad with concrete which wraps the south, east and west facades to gently terminate into the ground at the northern edge of the building.
    At high-level, the building will be clad in translucent polycarbonate to introduce filtered light to the interior and at night will create a glowing hood to the building revealing its internal structural language to the street and surrounding context. These three materials will be softened by an expansive use of timber and plywood as interior finishes through the walls and ceilings. Timber will also provide a good-acoustic stability to the large interior space.

    The building is broken up into two distinctive yet connected volumes. The large stadium space is the primary volume whilst the lower reduced scale, ‘street’ proportioned volume hosting administration area, a gymnasium and amenities, provides a transitional buffer between the residential scale, Darnley Street fabric and the larger building fabric within the school grounds. This black steel clad volume is to be read as a ‘suburban silhouette’ providing a visual relationship between the building and the surrounding residential houses along the small side street. 

    The typical internal height of the main stadium space is 8mts to provide a more relatable scale of the building to its occupants, its context within the school and the surrounding neighbourhood.  
    Similarly the lower volume is relative to the surrouding house heights in the area.

    The building will be further grounded within its site by a rich native Australian palette of trees and landscaping to the extent of its perimeter.

Data and Credits

Scope: Architecture & Interiors
Typology: Educational - Sports & Recreation Hall
Cost: $10mil AUD
GFA: 2274 sqm
Services: Full Architectural Services
Completed: 2022
[Designed and completed whilst director & design director of
Branch Studio Architects]
Structural Engineer: OPS
Building Surveyor: Michel Group
Builder: Lloyd Group
Photography: Peter Clarke

Interiors

Construction photography

Drawings

Previous
Previous

Marcellin College Library

Next
Next

Caroline Chisholm College - Flyover Gallery